火災自動報警系統總線隔離器的原理及應用

在總線制火災自動報警系統中,因各種原因有時會出現某一局部總線出現故障(例如短路),可能會造成整個報警系統全線癱瘓的情況。而使用隔離器串入總線的各段或串入主線與支線的交界處,一旦出現總線回路某處短路,隔離器就會將發生故障的總線部分與整個系統隔離開來,以保證系統的其它部分能夠正常工作。

工作原理
隔離器(又稱隔離模塊)相當于一個自動開關,當隔離器輸出所連接的回路發生短路故障時,隔離器內部電路中的自復熔絲斷開,同時內部電路中的繼電器吸合,將隔離器輸出所連接的電路完全斷開。總線短路故障修復后,繼電器釋放,自復熔絲恢復導通,隔離器輸出所連接的電路重新納入系統。
規范要求
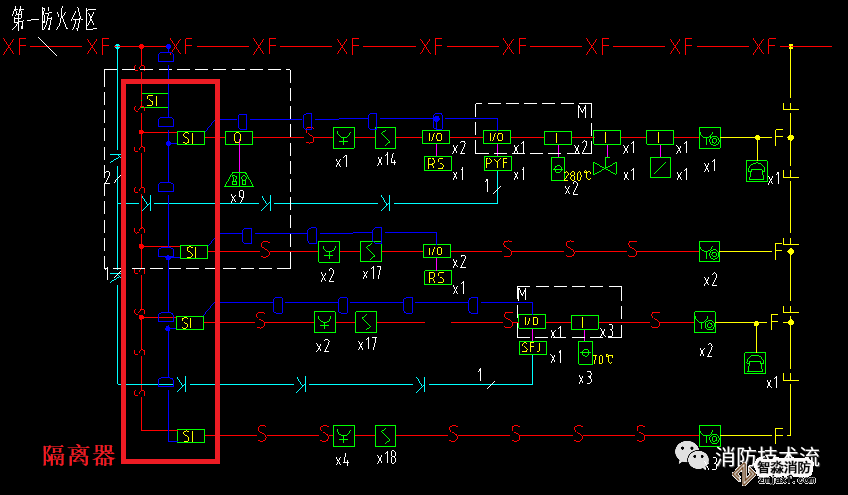
《火災自動報警系統設計規范》3.1.6 系統總線上應設置總線短路隔離器,每只總線短路隔離器保護的火災探測器、手動火災報警按鈕和模塊等消防設備的總數不應超過 32 點;總線穿越防火分區時,應在穿越處設置總線短路隔離器。(強制性條款)

值得注意的是,許多設計人員都有一個疑問,電源總線需要接隔離器嗎?因國標圖集(上圖)的畫法電源總線也接入了隔離器,因此在設計時多數都按圖集畫法設計,有些設備廠家為了迎合圖集的做法也生產有24v電源的隔離器,但實際應用中使用效果并不佳,容易誤動作。

日常維護中,當發現同一回路多個連號的設備報故障信號時,首先應確認是否有隔離器動作,繼而查找具體故障原因;因2013版新設計規范執行以前,舊的火災自動報警系統設計規范并未對其作出強制要求,因此,在一些老系統中未必都設置了總線隔離器。
智淼君安(江蘇)消防工程技術有限公司http://www.jurongxin.cn/海灣消防安全有限公司主營:GST海灣消防報警設備銷售,消防工程施工改造,氣體滅火、電氣/漏電火災、消防水系統施工安裝,售后維修保養,檢測,調試,海灣消防網站:http://www.jurongxin.cn/;海灣消防服務熱線:4006-598-119
本頁關鍵詞:


蘇公網安備32058102002148號